Skip to main content

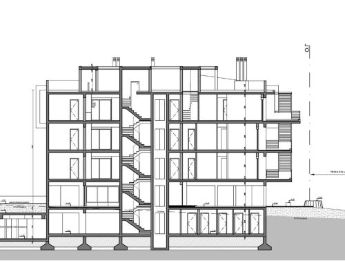
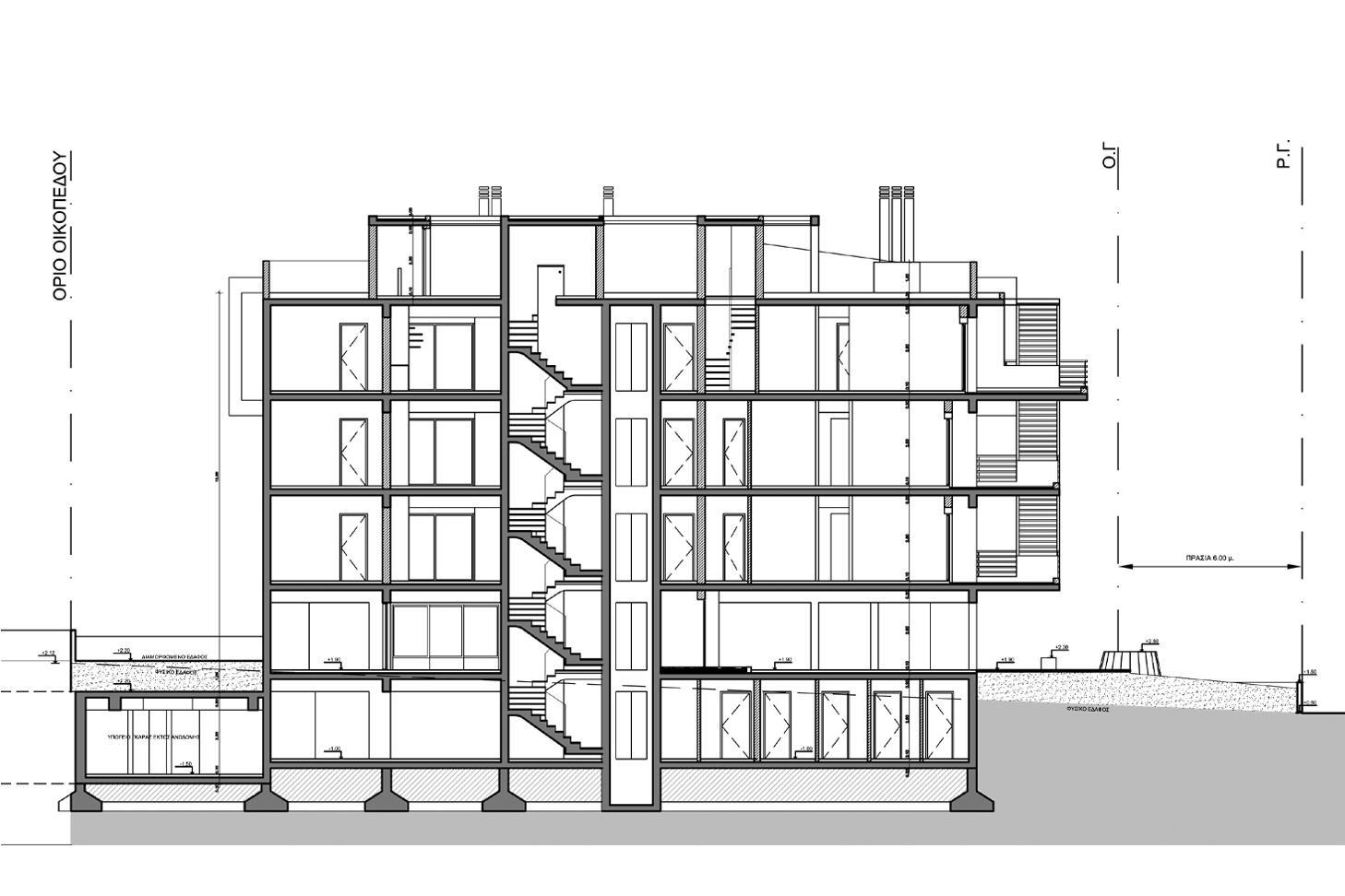
Πολυκατοικία στο Πόρτο Ράφτη