Skip to main content

Owen School στο Τορόντο, Καναδάς

Εργασίες

Θέση: Τορόντο, Καναδάς
Προμελέτη: 1992

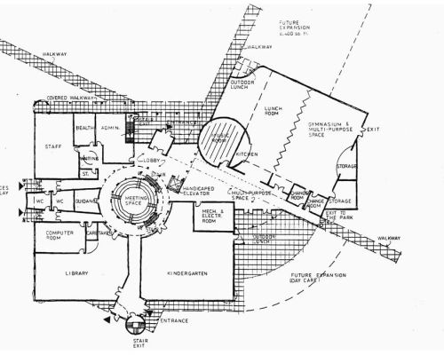
Η ιδέα του σχεδιασμού ήταν η σύζευξη διαφορετικών γεωμετρικών σχημάτων σε περιστροφή γύρω από έναν κεντρικό κόμβο .
Για να διατηρηθεί μια κλίμακα που να είναι συμβατή με την περιβάλλουσα συνοικία, έχουν διασπαστεί οι όγκοι του κτιρίου και ο σχεδιασμός περιορίζεται σε δύο ορόφους. Όλες οι αίθουσες διδασκαλίας βρίσκονται στον πρώτο όροφο δημιουργώντας διδακτικούς χώρους προσανατολισμένους στην κεντρική καρδιά του σχολείου που οπτικά συνδέει το ισόγειο και τον πρώτο όροφο. Το ισόγειο περιλαμβάνει της κεντρική κυκλική αίθουσα σε άμεση σχέση με την Κεντρική Είσοδο, την Διοίκηση ,τα Γραφεία Προσανατολισμού , το Κέντρο Πληροφόρησης, και το Εστιατόριο. Δημιουργείται με αυτόν τον τρόπο το Κέντρο Κοινότητος του σχολείου, ο τόπος συνάντησης των μαθητών των καθηγητών και του προσωπικού.
Κάθε χώρος διδασκαλίας επιτρέπει μέγιστη ευελιξία ώστε να μπορεί να διαιρείται σε ποικίλους μικρότερους διδακτικούς χώρους που συνδέονται μεταξύ τους με ένα κοινό χώρο ανάγνωσης.
Ο σχεδιασμός εισάγει μια νέα έννοια για τα δημοτικά σχολεία επιτρέποντας στους μαθητές να εισέρχονται σε ένα κεντρικό χώρο συνάντησης. Ταυτόχρονα επιτρέπει μελλοντικές επεκτάσεις, με ελάχιστες προσαρμογές στον υπάρχον κτίριο, που θα μπορέσει να προστεθεί στο κτίριο χωρίς να επηρεαστεί η ακεραιότητα της σχεδιαστικής ιδέας.
Ένα διαγώνιο μονοπάτι-άξονας διασχίζει το σχολείο ενώνοντας το με τον δημοτικό περιβάλλοντα χώρο καθιστώντας με αυτόν τον τρόπο το σχολείο ως μέρος της κοινότητας και της συνοικίας.